河南滄凈環保科技有限公司
Tel:李經理 189 3715 5988
王經理 189 3715 6188
電話:0371 - 5511 6226
郵箱:cangjinghuanbao@126.com
地址:中國·鄭州·滎陽市工業園區
碳酸鈉投加系統
更新時間:2023/1/20 23:05:04點擊次數:
20m3碳酸鈉投加系統是中化環境廣汽項目與石灰投加系統配套供應的子系統單元。該單元采用獨立PLC自動控制,可實現碳酸鈉粉末的自動定量投加,為該車間物化單元的工業廢水前處理階段的漿液制備,提供了可靠的粉體輸送工藝。

碳酸鈉投加系統平面布局圖(初設階段)
在該碳酸鈉投加系統工藝的原始初設階段,現場的環境布局采用的是雙層平行布置,這就給料倉的尺寸設計提供了足夠的安裝空間,但是隨后卻被廣州市環境技術保護有限公司否定,需要考慮廠區道路的暢通,留足雙向車道的寬度,不得已改為單層布置,這就決定了料倉的直徑需要極限壓縮,從而造成料倉的高度發生很大變化,出現了細長比的突變。為了安全考慮需要重新設計,并提供《固體料倉計算報告書》。

碳酸鈉投加系統固體料倉液壓試驗計算書
為此我司工程師采用石油化工靜設備計算機輔助設計系統結合當地風載及地震載荷詳細評估了料倉鋼結構性能與設備的強度應變能力,保證滿足現場設備的靜置使用年限可達25年之久。
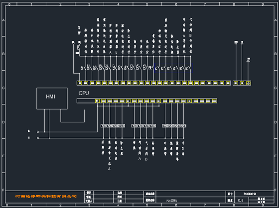
碳酸鈉投加系統電氣原理圖

該套碳酸鈉投加系統跟現場的石灰投加系統(PC端)相似,遇上的問題也是一樣的。可參照石灰投加系統(移動端)詳細說明。至于電氣原理方面。僅實施了投粉功能,相應的計量環節,所采用的單體設備是星型給料機,屬于粗略計量裝置,誤差范圍在5%~8%之間,對于每小時2T的投加量來說,影響并不大,所以投加的效果還是很理想的。
碳酸鈉投加系統發貨紀實

上一篇:沒有了
下一篇:石灰投加系統






